Präzise CAD-Lösungen für Ingenieure und technische Zeichner
Von der Konzeption bis zur Umsetzung - wir bieten umfassende CAD-Dienstleistungen für alle Ihre technischen Projekte.
Precision engineering
Advanced visualization
Professional documentation
Ihr verlässlicher Partner für technische CAD-Lösungen
Mit über einem Jahrzehnt Erfahrung in der CAD-Branche haben wir uns auf die Bereitstellung präziser, innovativer und effizienter Designlösungen spezialisiert, die den höchsten Industriestandards entsprechen.
Höchste Genauigkeit in allen technischen Zeichnungen
Modernste CAD-Technologien und Methoden
Pünktliche Lieferung und professioneller Service
Umfassende CAD-Lösungen für alle Ihre Bedürfnisse
Professionelle Erstellung von technischen Zeichnungen und CAD-Modellen
Detaillierte 3D-Modelle für Visualisierung und Prototyping
Konvertierung zwischen verschiedenen CAD-Formaten
Präzise technische Dokumentation und Fertigungszeichnungen
Anforderungsanalyse
Konzeptentwicklung
CAD-Erstellung
Qualitätsprüfung
Einige unserer erfolgreich abgeschlossenen Projekte

Komplette CAD-Planung für Produktionsanlage

Detaillierte 3D-Visualisierung für Bauprojekt

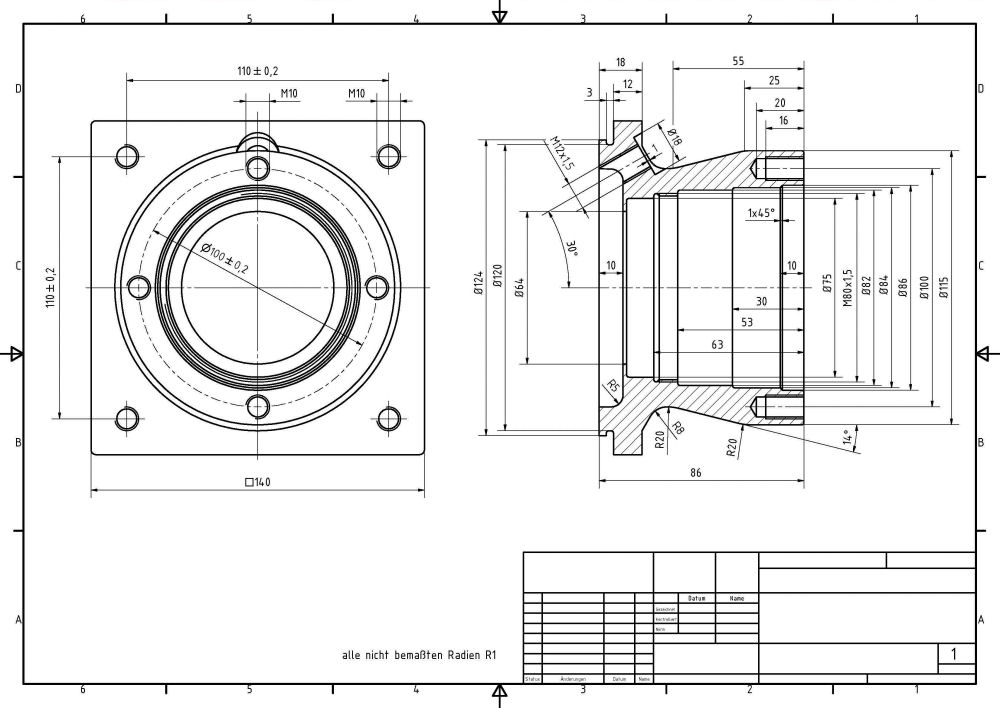
Technische Zeichnungen für Fertigungsmaschinen
Bereit, Ihr nächstes Projekt zu starten?
Kurfürstendamm 171 10707 Berlin, Deutschland
+4917636349294
info@zbau.tech
Mo-Fr: 9:00-18:00
Sofortberatung
Rufen Sie uns direkt an
E-Mail Support
Antwort innerhalb 24h